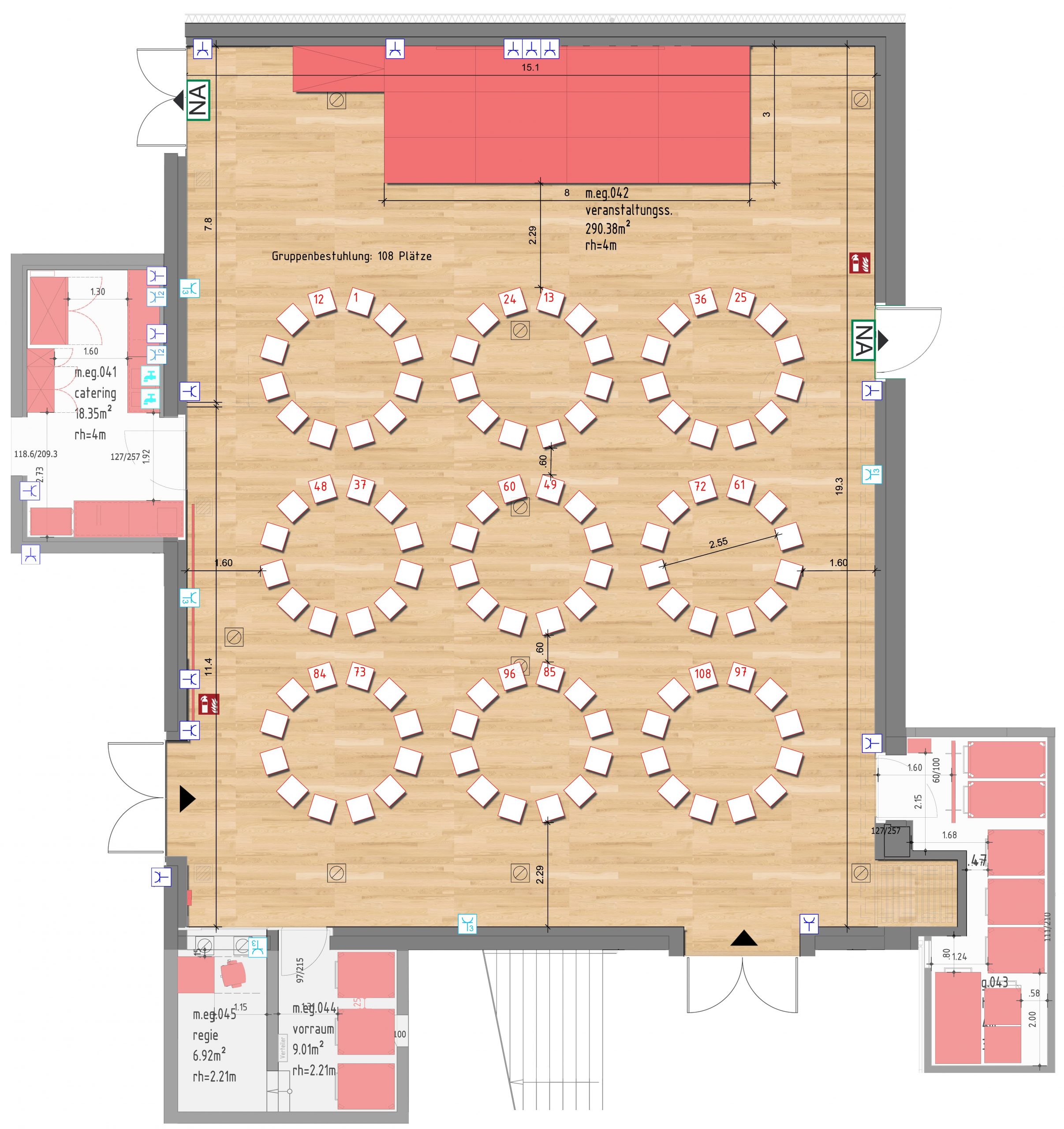
Deutschlandhaus Planung der Veranstaltungen Veranstaltungsplanung Veranstaltungssaal Reihenbestuhlung U-Bestuhlung O-Bestuhlung Inselbestuhlung 1 Inselbestuhlung 2 Klassebestuhlung Gruppenbestuhlung Konferenzbestuhlung Seiten: 1 2 3 4